·ÎµùÁß

LOADING...

´ÙÃþ¼øÈ¯½Ä

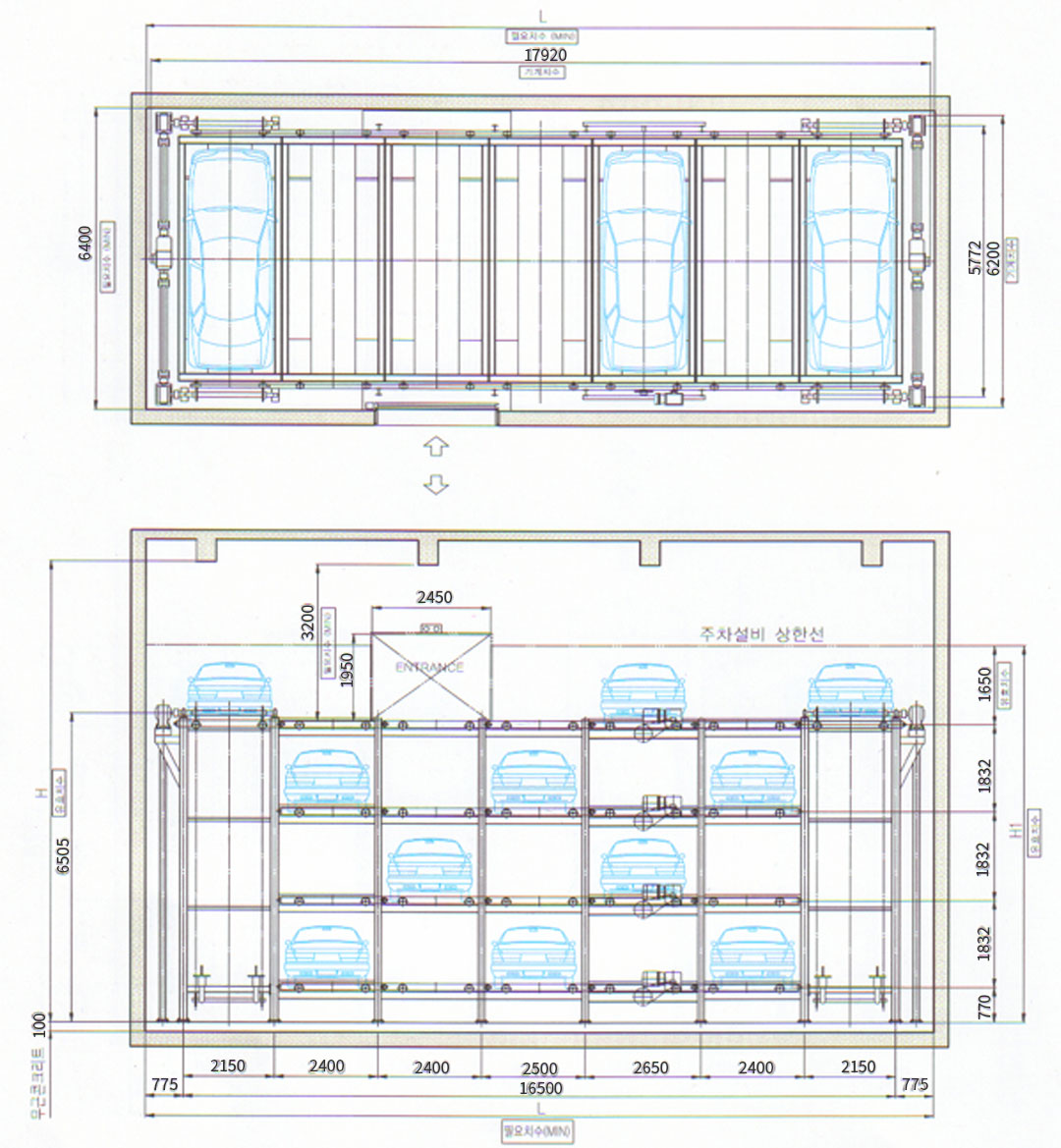
ÅäÁö°ø°£ ÀÌ¿ëÀ²À» ÃÖ´ëÇÏ¿© ¿©·¯Ãþ (2´Ü~5´Ü)¿¡ ÁÖÂ÷±¸È¹À» Çü¼ºÇÏ¿© ¾çÂÊ ³¡´Ü¿¡ LIFT¸¦ ½Â,Çϰ­½ÃŰ°í °¢´Ü¿¡ ȾÇൿÀÛÀ¸·Î ¼öÆòÀ̵¿ÇÏ¿© ÁÖÂ÷½Ã۵µ·Ï Çü¼ºÇÑ ÁÖÂ÷ÀåÄ¡ ÀÔ´Ï´Ù. ´ÙÃþ¼øÈ¯½ÄÀº °ø°£ È¿À²ÀÌ °¡Àå ³ô¾Æ Áß¼ÒÇü °Ç¹°¿¡ ÀûÇÕÇϸç ÁøÀÔ À§Ä¡¿¡ µû¶ó »óºÎ½ÂÀԽİú Á÷Á¢½ÂÀÔ½ÄÀ¸·Î ºÐ¸®µË´Ï´Ù.

´ÙÃþ¼øÈ¯½Ä
  • ƯÀåÁ¡

  • ÃÖ°í 5´Ü±îÁö ¼³Ä¡ °¡´ÉÇÔÀ¸·Î °ø°£È¿À²ÀÌ °¡Àå ³ô´Ù.
  • Ç¥ÁØÈ­ ¼³°è·Î Á¦ÀÛ, ¼³Ä¡°¡ °£ÆíÇÏ´Ù.
  • °ø°£¿¡ µû¶ó »óºÎ ¶Ç´Â ÇϺο¡ ³»Àå ÅÏÅ×ÀÌºí ¼³Ä¡°¡ °¡´ÉÇÏ´Ù.
  • TOUH SCREEN ¿îÀü¹æ½ÄÀ¸·Î °£ÆíÇÏ°í ¿îÀü»óȲÀ» ÇÑ´«¿¡ º¼ ¼ö ÀÖ´Ù.

»óºÎ½ÂÀÔ½Ä (ÁßÇüÂ÷·® ¼ö¿ëÇü)

»óºÎ½ÂÀÔ½Ä (ÁßÇüÂ÷·® ¼ö¿ëÇü)

»óºÎ½ÂÀÔ½Ä (Áߤý¼ÒÇüÂ÷·® ¼ö¿ëÇü)

»óºÎ½ÂÀÔ½Ä (Áß, ¼ÒÇüÂ÷·® ¼ö¿ëÇü)

»óºÎ½ÂÀÔ½Ä ÅÏÅ×ÀÌºí ³»ÀåÇü (ÁßÇüÂ÷·® ¼ö¿ëÇü)

»óºÎ½ÂÀÔ½Ä ÅÏÅ×ÀÌºí ³»ÀåÇü (ÁßÇüÂ÷·® ¼ö¿ëÇü)

ÇϺα¸µ¿ »óºÎ½ÂÀÔ½Ä (ÁßÇüÂ÷·® ¼ö¿ëÇü)

ÇϺα¸µ¿ »óºÎ½ÂÀÔ½Ä (ÁßÇüÂ÷·® ¼ö¿ëÇü)

»óºÎÁ÷Á¢ ½ÂÀÔ½Ä (Áߤý´ëÇüÂ÷·® ¼ö¿ëÇü)

»óºÎÁ÷Á¢ ½ÂÀÔ½Ä (Áߤý¼ÒÇüÂ÷·® ¼ö¿ëÇü)

»óºÎÁ÷Á¢ ½ÂÀÔ½Ä (Áߤý¼ÒÇüÂ÷·® ¼ö¿ëÇü)

»óºÎÁ÷Á¢ ½ÂÀÔ½Ä (Áߤý¼ÒÇüÂ÷·® ¼ö¿ëÇü)

ÇϺΠÁ÷Á¢ ½ÂÀÔ½Ä (Áߤý ´ëÇüÂ÷·® ¼ö¿ëÇü)

ÇϺΠÁ÷Á¢ ½ÂÀÔ½Ä (Áߤý ´ëÇüÂ÷·® ¼ö¿ëÇü)

ÇϺΠÁ÷Á¢ ½ÂÀÔ½Ä (Áß, ¼ÒÇüÂ÷·® ¼ö¿ëÇü)

ÇϺΠÁ÷Á¢ ½ÂÀÔ½Ä (Áߤý¼ÒÇüÂ÷·® ¼ö¿ëÇü)

»óºÎ½ÂÀÔ½Ä ÇϺÎÅÏÅ×ÀÌºí ³»ÀåÇü

»óºÎ½ÂÀÔ½Ä ÇϺÎÅÏÅ×ÀÌºí ³»ÀåÇü
  • º»»ç : ¼­¿ï½Ã ¿µµîÆ÷±¸ ¼±À¯·Î49±æ 23 516È£´ëÇ¥ : ÀÌÁ¾±â»ç¾÷ÀÚµî·Ï¹øÈ£ : 107-81-75742
  • TEL : 02-2631-0481FAX : 02-2632-6606EMAIL : dongwon0488@naver.com
  • °øÀå : °æ±âµµ ±èÆ÷½Ã ÅëÁøÀ¾ °¡Çö¸® 764-25
  • Copyright(c) 2021 by DONGWON. All right Reserved.[°ü¸®ÀÚ]